Villa à vendre à Benissa

Superbe villa en construction avec vue sur la mer, située à seulement 200m de la plage de La Fustera.
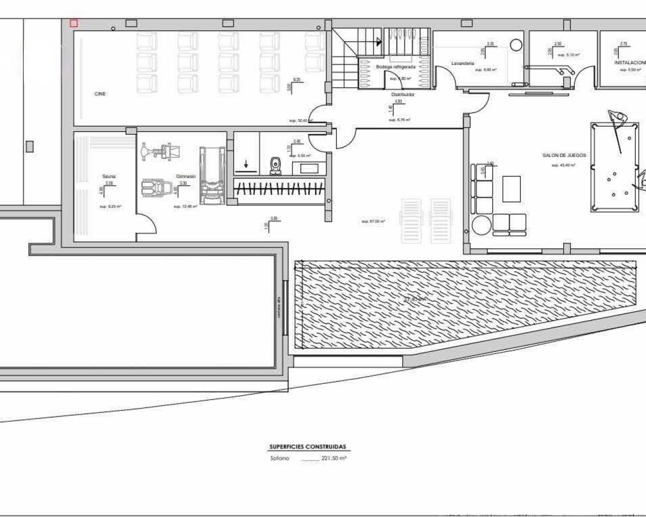
Distribuée sur 3 étages, le niveau inférieur comprend: une piscine intérieure chauffée, un sauna, une salle de cinéma, une salle de jeux, une buanderie et des toilettes séparées.
Au rez-de-chaussée, salon-salle à manger et cuisine avec accès à la terrasse et à la piscine à débordement, vestiaire pour les invités, 2 chambres et 2 salles de bains (dont une attenante).
Au premier étage, 2 autres chambres avec salle de bains attenante et accès à la terrasse.
La villa sera entièrement équipée d'un chauffage par le sol (système aérothermique), d'un système d'air conditionné chaud et froid, d'un éclairage LED et de panneaux solaires. Toutes les chambres seront équipées de placards et de volets électriques. La propriété aura une classification énergétique A.
Parcelle clôturée avec un beau jardin avec des plantes tropicales, une terrasse couverte et une cuisine extérieure.
Pour organiser une visite de cette villa à vendre à Benissa, veuillez contacter Sunshine Villas, votre agent immobilier à Benissa, Costa Blanca.
Voulez-vous nous demander quelque chose?
Cliquez ici et nous vous rappellerons