Chalet en venta en Teulada

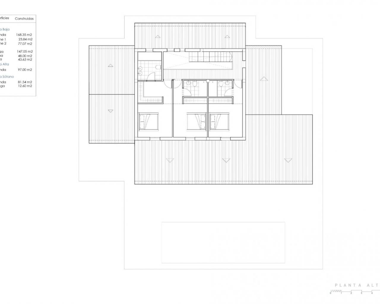
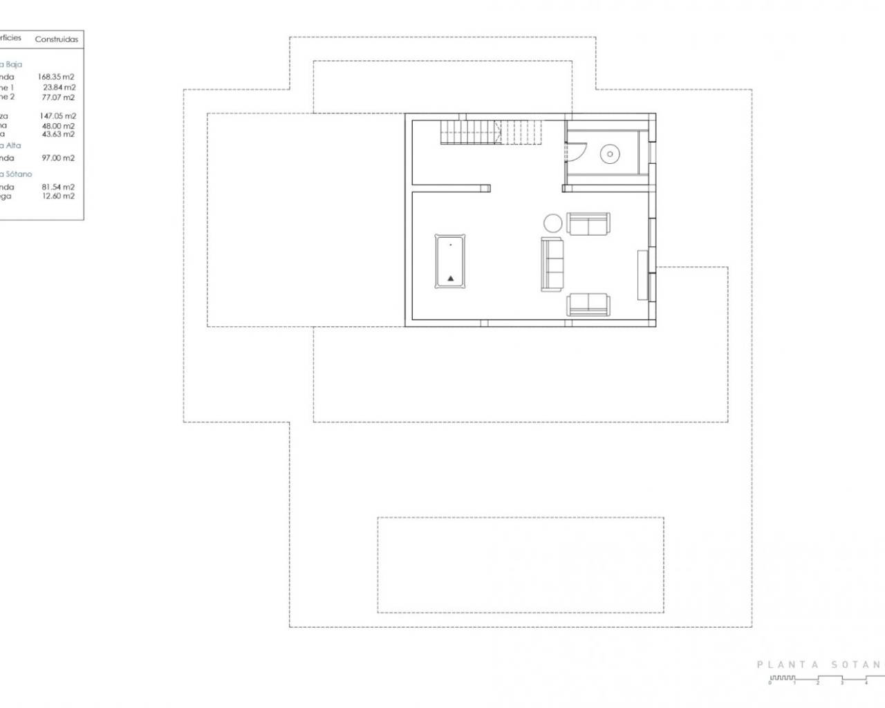
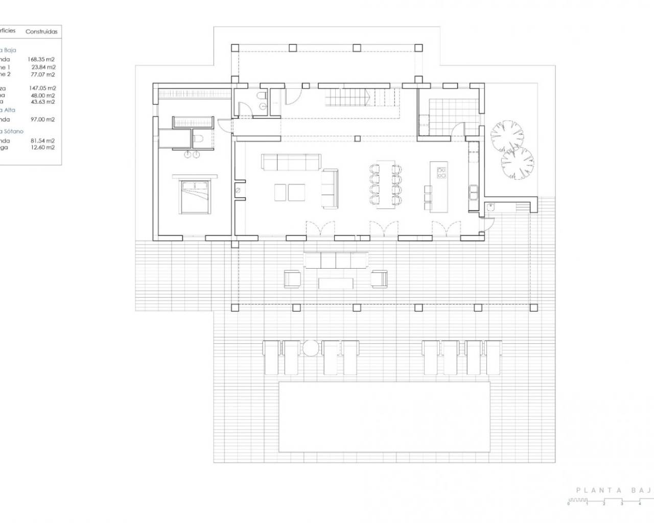
Propiedad de estilo finca que consta de: 4 dormitorios dobles con baño, un amplio salón-comedor con cocina moderna totalmente equipada y aseo de invitados. En el nivel principal al lado del salón hay un dormitorio con baño y tanto éste como el salón-comedor tienen acceso directo a una terraza cubierta con vistas a la piscina. En la planta superior hay 3 dormitorios dobles con baño.
Esta propiedad dispone de: calefacción por suelo radiante, aire acondicionado frío y caliente con control remoto, piscina y jardín, amplio espacio de estacionamiento y puertas de entrada automáticas.
Para organizar una visita para ver este chalet en venta en Teulada, póngase en contacto con Sunshine Villas, su inmobiliaria en Teulada, Costa Blanca.
¿Quieres preguntarnos algo?
Haz clic aquí y te devolveremos la llamada