Chalet 3 Dormitorios Jalon Valley - Alcalali

Descubre tu nuevo hogar en AlcalalíEnclavada en la idílica población de Alcalalí, esta villa de nueva construcción se alza como un oasis de modernidad y confort en la provincia de Alicante. Con una superficie construida de 211 m² y un generoso terreno de 1.021 m², esta propiedad es el escenario perfecto para una vida llena de luz y espacios abiertos.
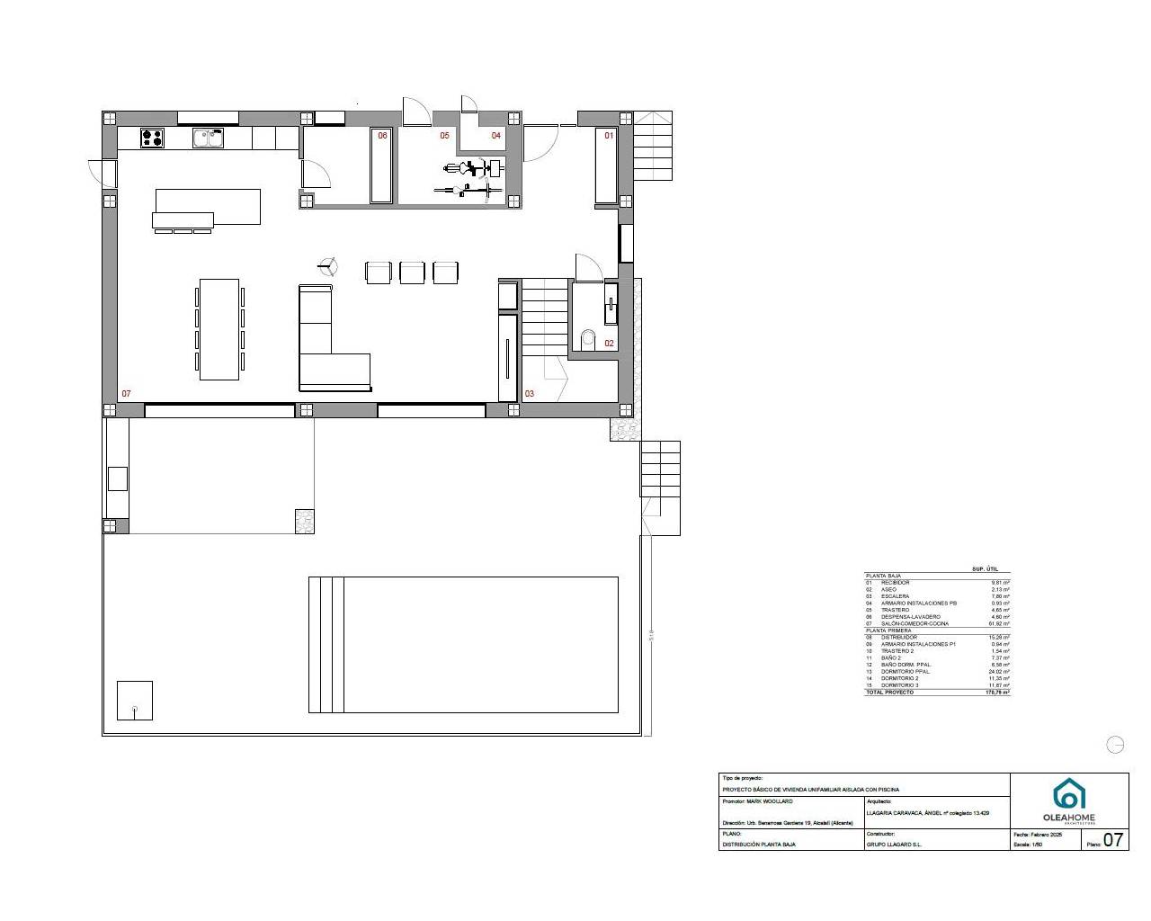
Diseño y DistribuciónEsta villa se distribuye en dos plantas. En la primera planta o planta principal se encuentra un magnifico salón comedor con chimenea y con una cocina con isla, un rincón ideal para compartir momentos con amigos y familia, una despensa, trastero y un aseo para invitados. La planta superior cuenta con tres acogedoras habitaciones que ofrecen la intimidad y el descanso que mereces, acompañadas de dos baños elegantemente diseñados que combinan funcionalidad y estilo, uno de ellos in suite. La distribución ha sido pensada para maximizar el aprovechamiento del espacio, permitiendo un flujo natural entre las distintas áreas de la casa.
Un Espacio para DisfrutarLa villa ofrece una zona de jardín que invita a disfrutar del aire fresco y de la naturaleza con total privacidad y dos terrazas para disfrutar el clima mediterráneo durante todo el año.
Características Exteriores e InterioresLa propiedad está dotada de una piscina de 8 x 4, perfecta para refrescarse durante los calurosos días de verano. Los espacios exteriores incluyen una terraza abierta y una terraza cubierta. La villa, completamente cerrada, garantiza seguridad y tranquilidad, mientras que la comunicación efectiva con las principales vías cercanas facilita el acceso a servicios y atracciones locales.
Comodidades AdicionalesEquipado con aire acondicionado frio y calor por conductos, cada rincón de esta villa ofrece un ambiente cálido y confortable en cualquier época del año. Las ventanas de doble acristalamiento, persianas automáticas en los dormitorios y el acceso a parking y trastero añaden una capa adicional de conveniencia y comodidad a tu día a día.
Este refugio no solo es un lugar para vivir, sino un estilo de vida que abraza la serenidad y el lujo que ofrece Alcalalí. Con su arquitectura contemporánea y características excepcionales, esta villa es una invitación a disfrutar de cada día en un paraje donde el tiempo parece detenerse.
¿Quieres preguntarnos algo?
Haz clic aquí y te devolveremos la llamada
Propiedades similares