Chalet 4 Dormitorios Moraira - Benimeit

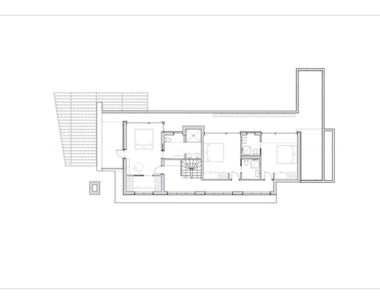
Moderna villa de nueva construcción en venta en Benimeit, Moraira. Vistas panorámicas, alto nivel de acabados, 4 dormitorios con baños en suite, piscina y cochera. Esta moderna villa en Benimeit, Moraira, combina un diseño elegante con una distribución práctica y acabados de alta calidad. La villa tiene vistas panorámicas y es un equilibrio ideal entre comodidad, privacidad y arquitectura moderna. Se espera que la construcción se complete en un plazo de 12 a 15 meses tras la firma del contrato. Descripción La villa ha sido diseñada prestando especial atención al espacio y la luz. En la planta baja hay un amplio salón con grandes ventanales de suelo a techo, una cocina moderna con zona de comedor y lavadero, un cuarto de baño adicional o aseo de invitados, un lavadero y un dormitorio con cuarto de baño en suite. Desde el vestíbulo se accede a una escalera que conduce a la planta superior. Aquí se encuentra el dormitorio principal con vestidor, baño en suite y terraza privada, además de dos dormitorios adicionales, cada uno con su propio baño y acceso a una terraza. En el exterior hay una gran terraza soleada con piscina, varias terrazas cubiertas y una cochera con capacidad para varios vehículos. La villa es ideal para quienes buscan una vivienda cómoda con líneas contemporáneas y una distribución funcional. Características Vistas panorámicas Alta calidad de construcción y acabadosVentanas de suelo a techo para una iluminación óptimaPiscina con amplia terraza y zonas de descanso cubiertasCarport para varios vehículosTodos los dormitorios tienen baño en suitePor qué visitar esta villa Excelente calidad de construcciónExcelente ubicaciónHabitaciones y espacios ampliosUn proyecto excelente para una vivienda cómoda para quienes desean vivir con visión de futuro en Moraira, Costa Blanca. ¿Le interesa este elegante proyecto? Deje que uno de nuestros comerciales le informe. ¡Llámenos o visítenos!
¿Quieres preguntarnos algo?
Haz clic aquí y te devolveremos la llamada
Propiedades similares