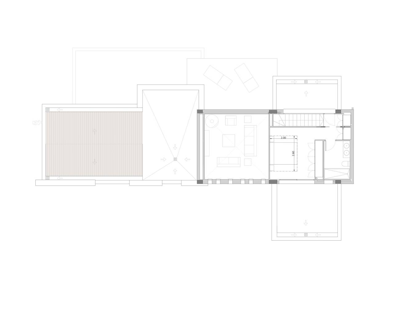
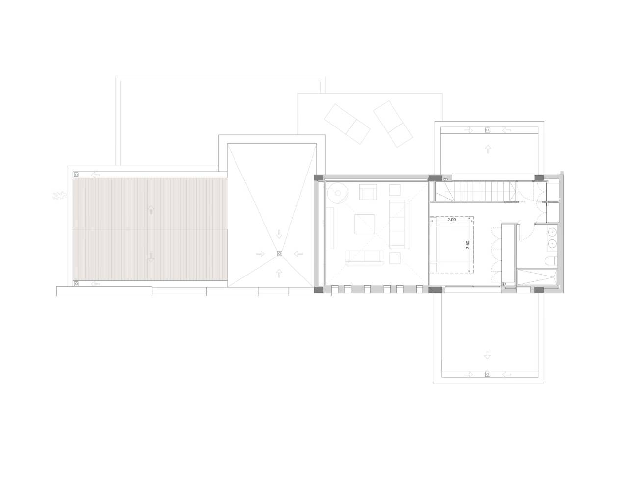
Chalet 3 Dormitorios Javea - Las Laderas

Preciosa villa de estilo ibicenco en Jávea, a un corto trayecto de todos los servicios. En el exterior de la propiedad nos encontraremos una villa de estilo moderno con aires ibicencos, con enfoscados en piedra y grandes ventanales que proporcionan mucha luz natural, terrazas cubiertas, perfectas para cenas con familiares y amigos, terrazas descubiertas, ideales para disfrutar del sol del Mediterráneo, un precioso estanque en la parte trasera y una gran piscina, en la parte delante. En el interior un amplio salón-comedor con cocina abierta, equipada con barra, perfecta para desayunos y un aseo. En la zona de descanso, tres amplios dormitorios muy luminosos y tres baños completos. En la planta superior tendremos el dormitorio principal de buen tamaño con baño en suite y vestidor. Toda la villa viene equipada con ventanas de doble acristalamiento, aire acondicionado f/c, calefacción por suelo radiante y un garaje para dos coches.
¿Quieres preguntarnos algo?
Haz clic aquí y te devolveremos la llamada