Adosado en venta en Benitachell

Adosado orientado al sur con garaje integrado.
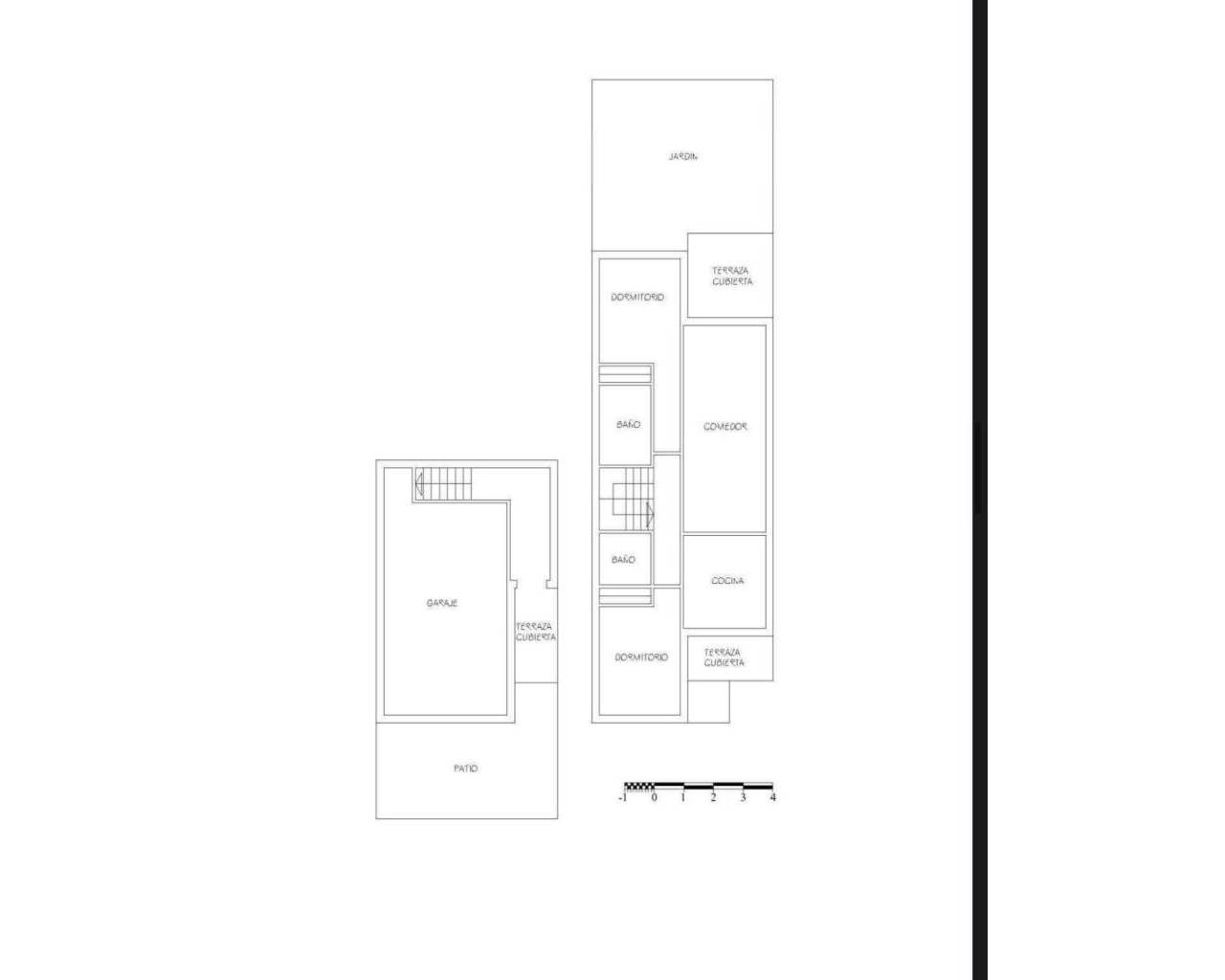
La planta principal consta de: salón-comedor con cocina abierta y acceso a las terrazas cubierta y descubierta, lavadero, dos dormitorios dobles y dos baños (uno de ellos en suite). Dispone de calefacción central de gas.
En la planta baja se encuentra un garaje y un trastero con acceso directo a la vivienda. Desde la terraza principal se accede al amplio jardín y a la piscina comunitaria. Gastos de comunidad: 150 €/trimestre. Impuesto sobre bienes inmuebles: 328 €/año.
Está situado en una zona muy tranquila, rodeada de naturaleza, a tan solo 5 minutos en coche del centro de Benitachell y a 10 minutos de Jávea.
Para organizar una visita para visitar este adosado en venta en Benitachell, póngase en contacto con Sunshine Villas, su agencia inmobiliaria en Benitachell, Costa Blanca.
¿Quieres preguntarnos algo?
Haz clic aquí y te devolveremos la llamada