4 Bedroom Detached villa Moraira - Benimeit

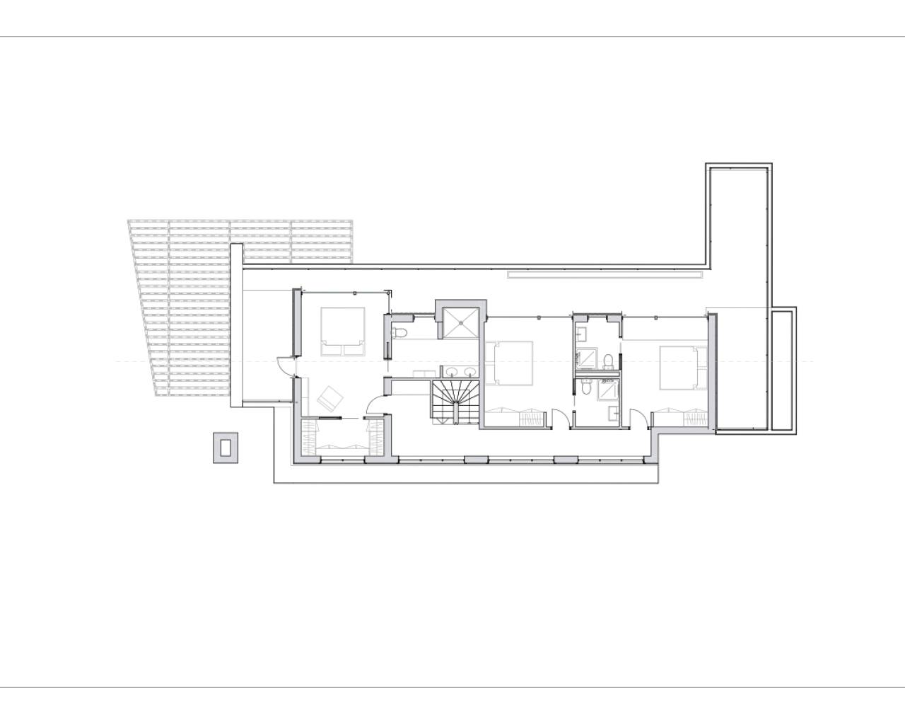
Modern new build villa for sale in Benimeit, Moraira. Panoramic views, high standard of finish, 4 bedrooms with en-suite bathrooms, swimming pool and carport. This modern villa in Benimeit, Moraira combines sleek design with a practical layout and high-quality finishes. The villa has panoramic views and is an ideal balance between comfort, privacy and modern architecture. Construction is expected to be completed within 12 to 15 months after signing the contract. Description The villa has been designed with attention to space and light. On the ground floor there is a spacious living room with large floor-to-ceiling windows, a modern kitchen with dining area and utility room, an additional bathroom or guest toilet, a laundry room and a bedroom with en-suite bathroom. A staircase leads from the hall to the upper floor. Here you will find the master bedroom with dressing room, en-suite bathroom and private terrace, plus two additional bedrooms, each with its own bathroom and access to a terrace. Outside you will find a large sun terrace with swimming pool, several covered terraces and a carport suitable for several vehicles. The villa is ideal for those looking for a comfortable home with contemporary lines and a functional layout. Special features Panoramic views High build quality and finishFloor-to-ceiling windows for optimal lightSwimming pool with spacious terrace and covered lounge areasCarport for multiple vehiclesAll bedrooms have en-suite bathroomsWhy view this villa Excellent build qualityGreat locationLarge rooms and spacesAn excellent project for a comfortable home for those who want to live in Moraira, Costa Blanca, with an eye to the future. Interested in this stylish project? Let one of our sales representatives inform you. Call or drop by!
Do you want to ask us something?
Click here and we will call you back
Similar Properties