3 Bedroom Detached villa Javea - Las Laderas

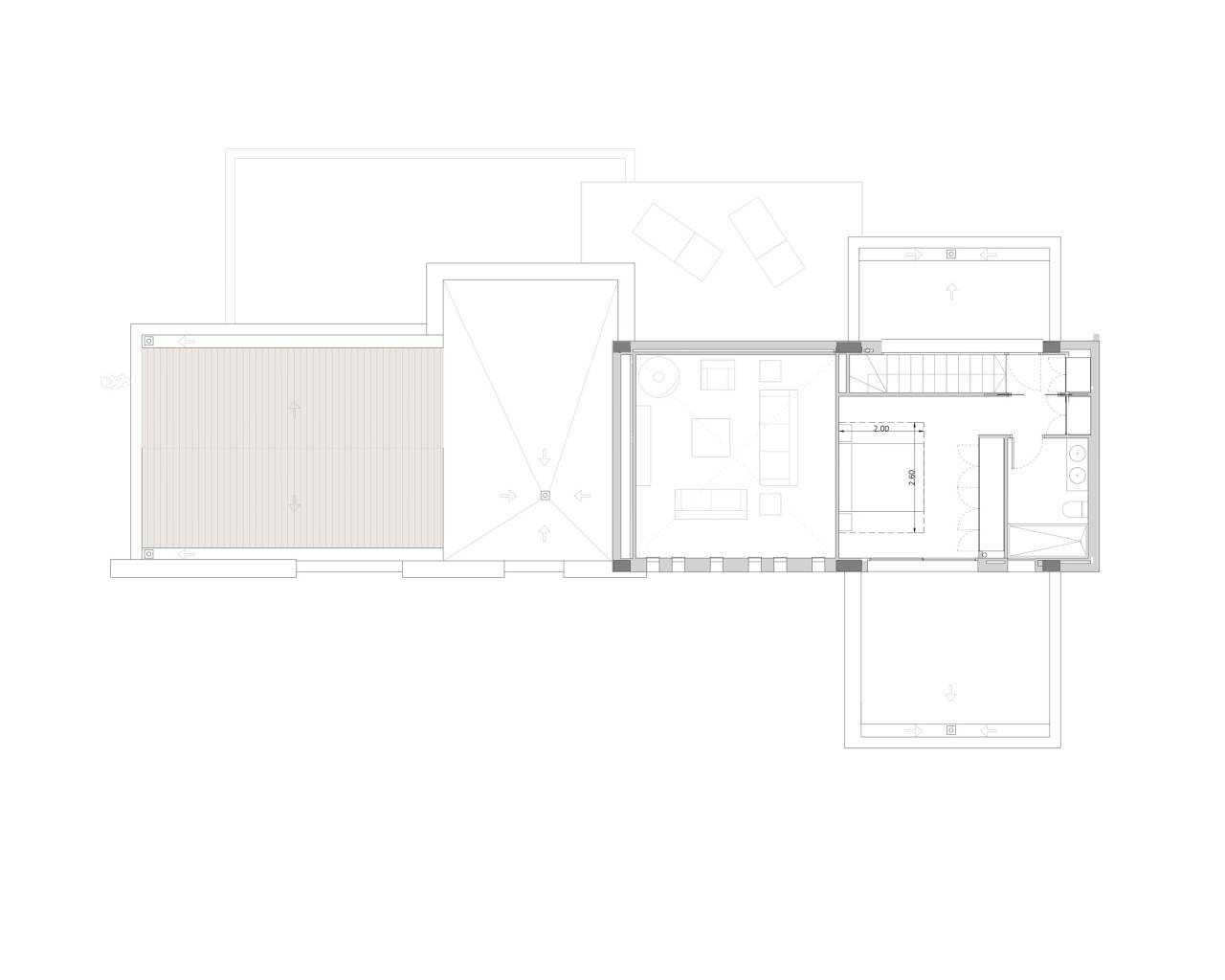
Beautiful Ibizan-style villa in Jávea, just a short distance from all amenities. On the outside of the property, we find a modern-style villa with Ibizan touches, featuring stone cladding and large windows that provide plenty of natural light, covered terraces perfect for dinners with family and friends, uncovered terraces ideal for enjoying the Mediterranean sun, a lovely pond in the back, and a large pool in the front. Inside, there is a spacious living-dining room with an open kitchen, equipped with a bar, perfect for breakfasts and a guest toilet. In the rest area, there are three large, bright bedrooms and three full bathrooms. On the upper floor, we have a well-sized master bedroom with an en-suite bathroom and a walk-in closet. The entire villa comes equipped with double-glazed windows, hot/cold air conditioning, underfloor heating, and a garage for two cars.
Do you want to ask us something?
Click here and we will call you back